Bilocale in vendita

Torino, Corso San Martino - Piazza Statuto
€ 165.000
2 locali 2 locali
53 Mq 53 Mq
1 bagno 1 bagno

Bilocale in vendita

Torino, Corso San Martino - Piazza Statuto

Descrizione annuncio

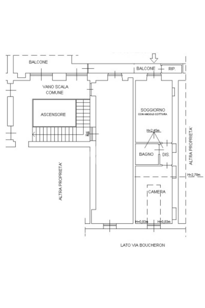
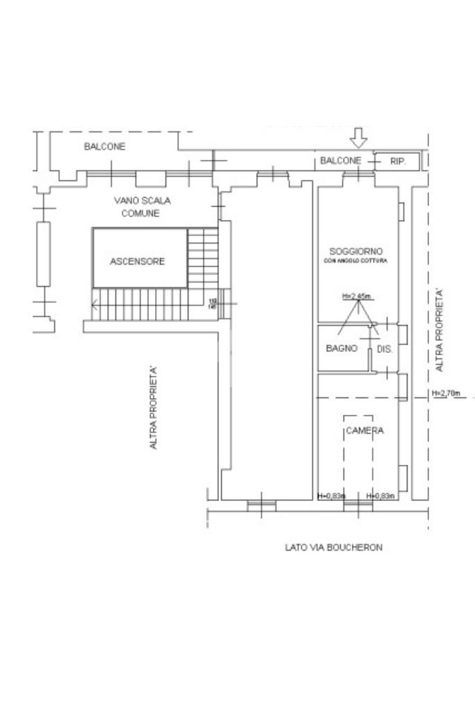
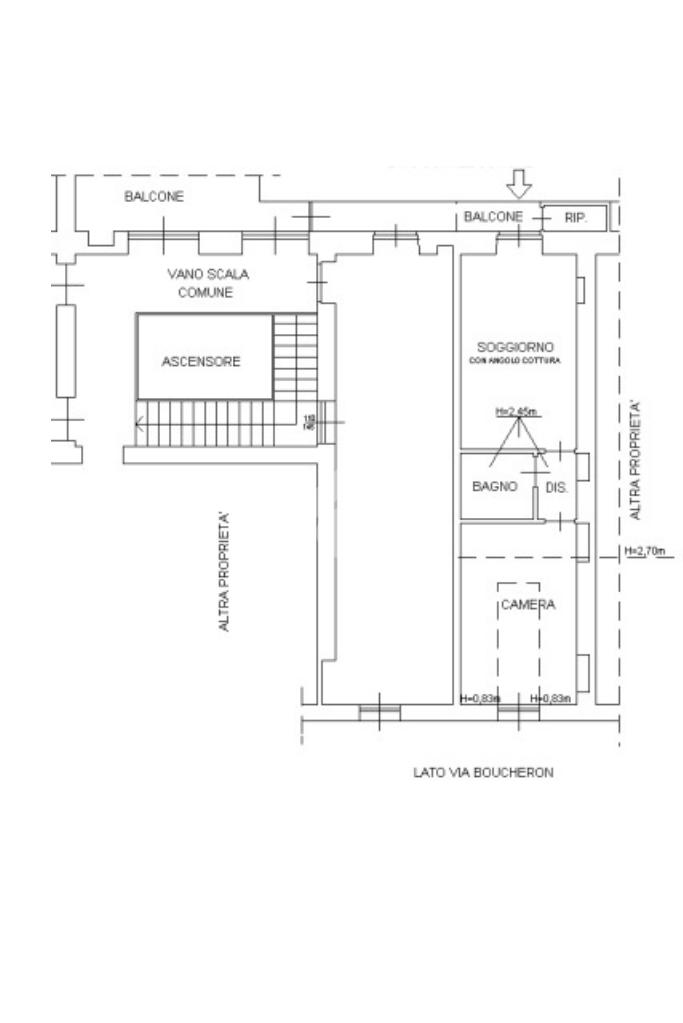
Nel cuore di Torino, in Piazza Statuto, si trova un affascinante appartamento d'epoca in vendita. Situato all'ultimo piano di un edificio storico risalente al 1800, questo immobile offre una superficie di 50 mq, distribuiti su due locali.
La posizione centrale garantisce un facile accesso ai servizi e alle attrazioni culturali di Torino, rendendolo ideale per chi desidera vivere immerso nella vivacità urbana.
La disposizione interna è funzionale e accogliente, perfetta per chi cerca un'abitazione che unisca il carattere storico al comfort moderno.
Un'opportunità unica per chi desidera investire in un pezzo di storia torinese, godendo al contempo della comodità di una posizione strategica.

L'ingresso, che avviene da balcone, si apre su un generoso e luminoso soggiorno con cucina a vista.
La camera da letto matrimoniale, con affaccio su Piazza Statuto, anch'essa è molto spaziosa e luinosa.
Il bagno, è completo di sanitari.
L'appartamento è stato completamente ristrutturato.

Mostra tutto

Nelle vicinanze

Trasporto pubblico Trasporto pubblico
XVIII Dicembre
XVIII Dicembre
210 m
Principi D'Acaja
Principi D'Acaja
350 m
stazione di Torino Porta Susa
stazione di Torino Porta Susa
490 m
stazione di Torino Porta Nuova
stazione di Torino Porta Nuova
1,8 Km
Statuto
Statuto
110 m
Ricariche auto elettriche Ricariche auto elettriche
evway TO Statuto
230 m
Bluetorino Porta Susa FS
500 m
evway TO Arbarello
580 m
evway TO Porta Susa
580 m
Bluetorino Bertolotti
830 m
Scuole Scuole
Liceo Scientifico A. Volta
270 m
Istituto Istruzione Superiore "Bosso-Monti"-succursale
440 m
Istituto Professionale Statale per i Servizi della Pubblicità Albe Steiner
470 m
Collegio Carlo Alberto
510 m
La Palestra del Cibo - Scuola di Cucina
600 m
Farmacia Farmacia
Porta Susa SNC
150 m
Almasio SNC
240 m
Comunale 43 - Afc
280 m
Farmacia
320 m
Farmacia Bernardi
530 m
Ospedali Ospedali
Ospedale Oftalmico
210 m
Clinica Fornaca di Sessant
1,1 Km
Ospedale Maria Vittoria
1,2 Km
Ospedale Amedeo di Savoia
1,6 Km
Amedeo di Savoia
1,7 Km
Supermercati Supermercati
Carrefour Market
350 m
Pam local
360 m
In's Mercato
380 m
Carrefour
490 m
Pam
610 m
Negozi Negozi
Lutry's
100 m
Santachiara Sposi
120 m
Terranova
230 m
Gurman
300 m
CRAI
340 m
Bar Bar
Pastarell
140 m
Night Club Babilonia
330 m
Family Bar
440 m
Codici e Calici
510 m
Caffetteria Manzoni
540 m
Ristoranti Ristoranti
Wang Jiao
10 m
Yaki Sushi
50 m
Sushi bar Ozeki
60 m
Ristoritaly
110 m
Gennaro Esposito
150 m
Mostra tutto

Caratteristiche

Rif.:
61155430
Piano:
5 di 5 con ascensore (ultimo Piano)
Balconi:
1
Camere da letto:
1
Arredamento:
Assente
Condizionamento:
Autonomo
Mostra tutto
Prezzo Prezzo
€ 165.000
Rata mutuo Rata mutuo
€ 779 / mese
Spese annue Spese annue
€ 600
Proponi il tuo prezzoProponi il tuo prezzo

Classe Energetica

D
D
D
D
D
D
D
D
D
Anno di costruzione:
1800
Riscaldamento:
Autonomo
Tipo impianto:
Ad aria
Tipo alimentazione:
Aria

Ti interessa visionare l'immobile?

Fissa un appuntamento  Fissa un appuntamento

Richiedi informazioni

Clicca su Leggi per aprire l'informativa
* Questi campi sono obbligatori

Calcola il tuo mutuo

Semplice e senza impegno
Anticipo

( % )
Mutuo

( % )

pochi semplici passi

inserisci i tuoi dati
Questionario completato
Grazie per aver richiesto un appuntamento senza impegno con un nostro Consulente del Credito e Assicurativo.

Hai inserito correttamente tutti i dati necessari e a breve riceverai una e-mail con un link da convalidare per inviare i tuoi dati.
Affiliato
Ag Srl
Corso Giuseppe Siccardi, 15/C 10123 Torino (TO)

Il nostro staff


  • Francesco Saponaro
    Affiliato

  • Laura Laghezza
    Collaboratrice

  • Marcella Raspante
    Coordinatrice

  • Antonio Brando Otera
    Collaboratore

  • Erika Vinci
    Collaboratrice
Corso Giuseppe Siccardi, 15/C 10123 Torino (TO)
Zona: Centro-Quadrilatero-Via Garibaldi-Piazza Statuto
Mostra su mappa
Affiliato
Ag Srl
Corso Giuseppe Siccardi, 15/C 10123 Torino (TO)

2025 Tecnocasa Franchising S.p.A. - P. IVA 08365160152 - Via Monte Bianco 60/A 20089 Rozzano (MI). Ogni agenzia ha un proprio titolare ed è autonoma. Privacy policy | Policy utilizzo | Cookie policy